BetonCelik.com
İnşaat Mühendisi Yazılımları
Ana Sayfa
Tüm Program Listesi
Demo İndir
Hakkında
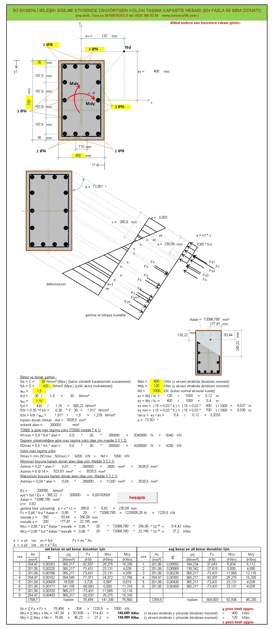
İki eksenli bileşik eğilme etkisinde kolon hesabı
İki eksenli bileşik eğilme etkisinde kolon hesabı
Geri Dön