BetonCelik.com
İnşaat Mühendisi Yazılımları
Ana Sayfa
Tüm Program Listesi
Demo İndir
Hakkında
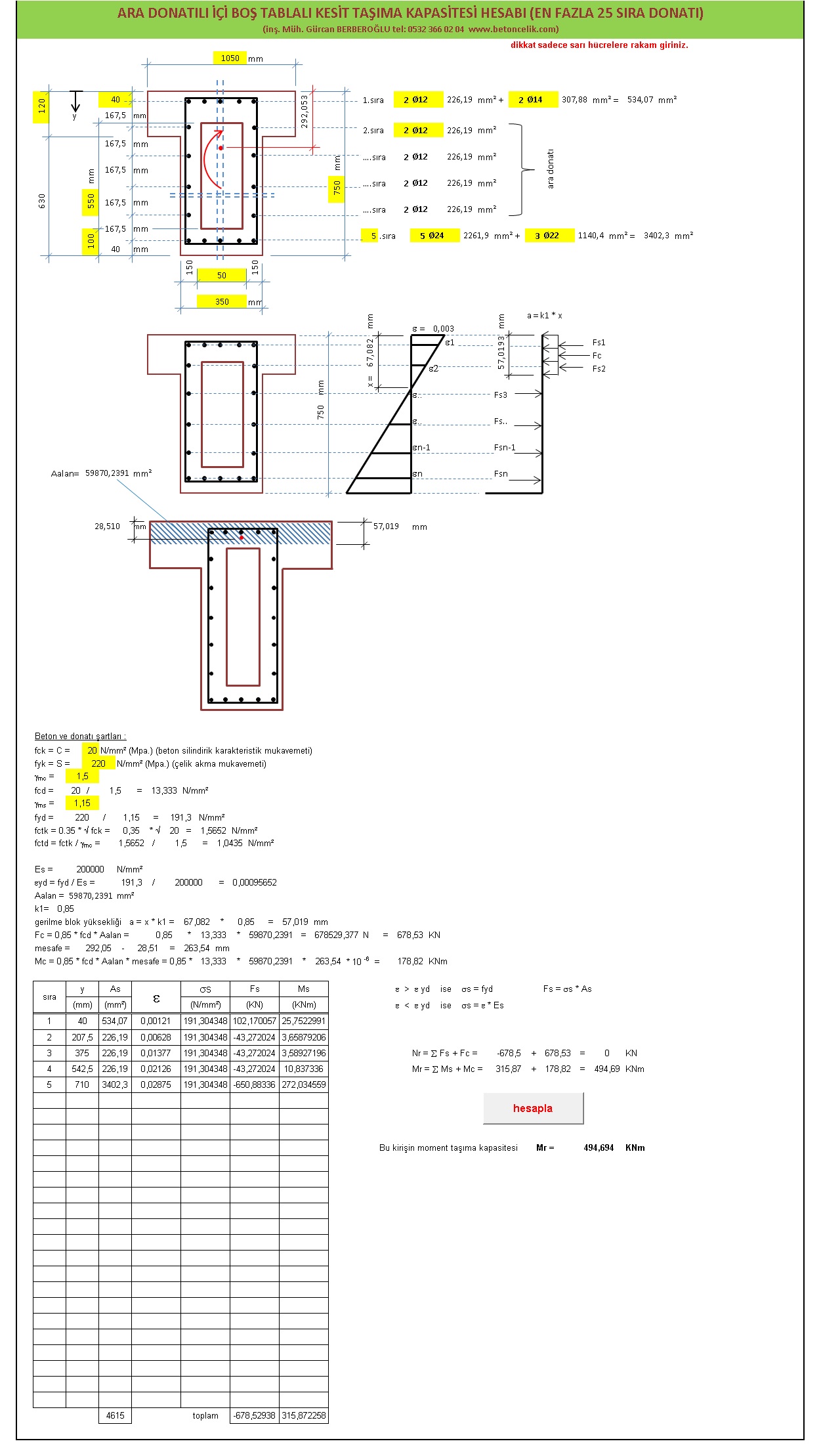
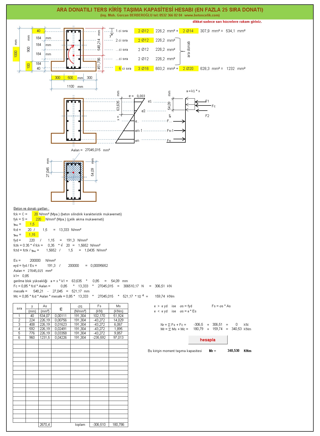
Ara donatılı kiriş taşıma kapasitesi hesabı
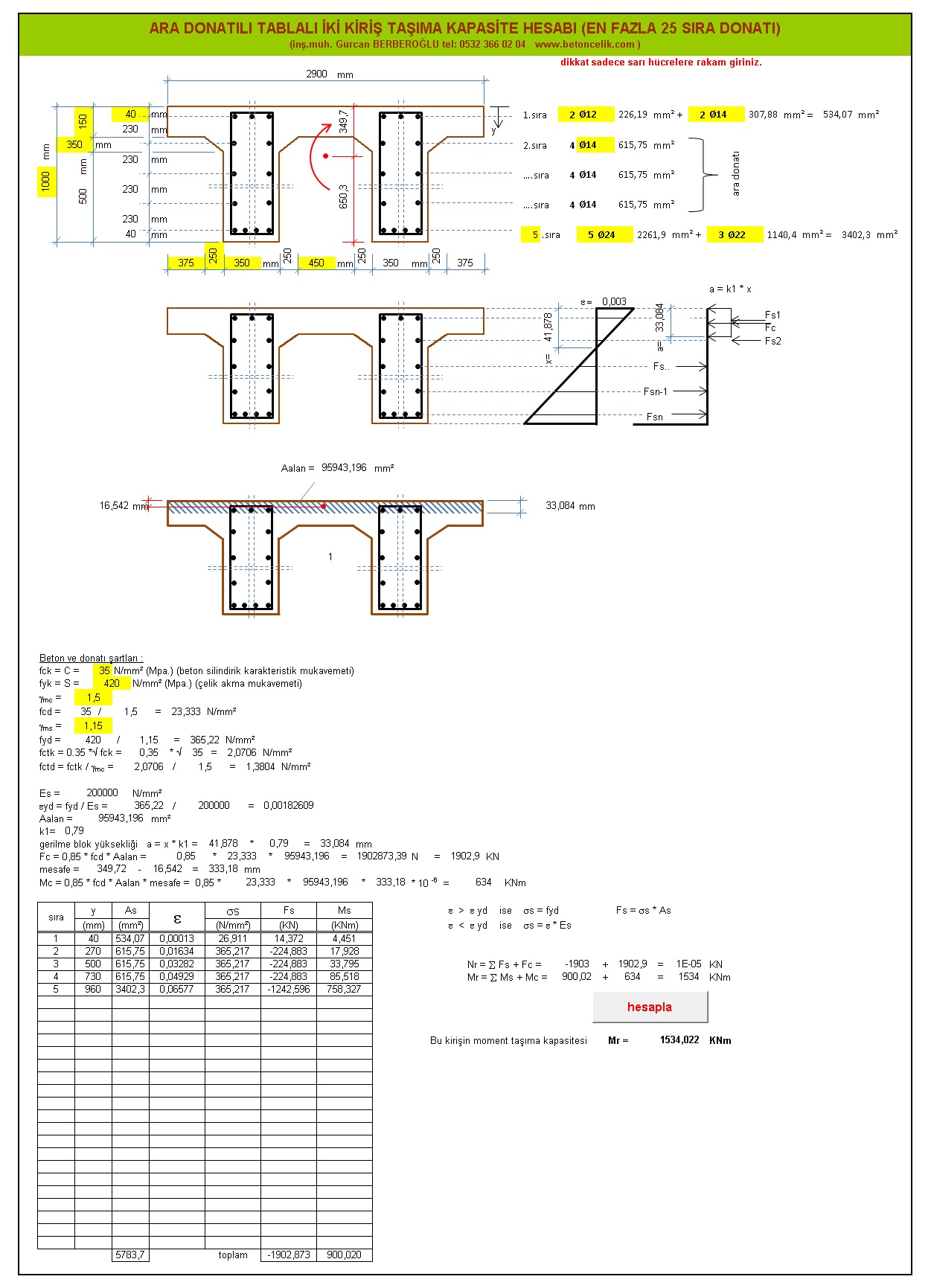
Ara donatılı kiriş taşıma kapasitesi hesabı
Geri Dön